Venetia Road, London W5
4 bed semi-detached to rent
£3,250 pcm
Ealing
- Type
- Semi-Detached
- Bedrooms
- 4
- Receptions
- 1
- Bathrooms
- 2
- Furnished
- Furnished / Unfurnished
- Status
- Available Now
- Fees
- The following are permitted payments which we may request from you:
a) The rent
b) A refundable tenancy deposit (reserved for any damages or defaults on the part of the tenant) capped at no more than five weeks` rent where the annual rent is less than £50,000, or six weeks` rent where the total annual rent is £50,000 or above
c) A refundable holding deposit (to reserve a property) capped at no more than one week`s rent
d) Payments to change the tenancy when requested by the tenant, capped at £50, or reasonable costs incurred if higher
e) Payments associated with early termination of the tenancy, when requested by the tenant
f) Payments in respect of utilities, communication services, TV licence and council tax; and
g) A default fee for late payment of rent and replacement of a lost key/security device, where required under a tenancy agreement
Please call us if you wish to discuss this further.
Redress scheme provided by: Property Redress Scheme (PRS011993)
Client Money Protection provided by: Safeagent (A4587)
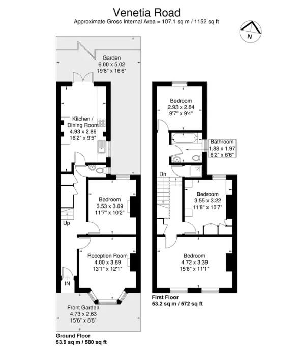
Floor Plan
Available Now
Close to South Ealing Tube | Newly Renovated | Private Rear Garden
Introducing a newly renovated four-bedroom home in Ealing. The property features four double bedrooms, two bathrooms, and a separate reception room in addition to a spacious kitchen/diner. Patio doors from the kitchen lead to a paved, low-maintenance private rear garden.
Both Ealing Broadway and South Ealing stations are easily accessible, along with a range of local amenities and schools. The property is offered part-furnished.
Residents can apply for street permit parking.
Council Tax Band: E
EPC: D
Holding Deposit: £750
Security Deposit: £3,750
*Subject to the tenancy condition
Notice
All photographs are provided for guidance only.
Redress scheme provided by: Property Redress Scheme (PRS011993)
Client Money Protection provided by: Safeagent (A4587)
Utilities
Electric: Unknown
Gas: Unknown
Water: Unknown
Sewerage: Unknown
Broadband: Unknown
Telephone: Unknown
Other Items
Heating: Not Specified
Garden/Outside Space: No
Parking: No
Garage: No
Key Features
- 4 Bedrooms
- Close to station
- Wooden Flooring
- Patio
- Furnished/Unfurnished
Station Nearby
- South Ealing
- Northfields
- Boston Manor
- Brentford
Energy Performance

Little Ealing Primary School
School Type : Local authority maintained schools
Level : Primary
Gender : Mixed
Age Range : 3 to 11 years
School DetailsMount Carmel Catholic Primary School
School Type : Local authority maintained schools
Level : Primary
Gender : Mixed
Age Range : 3 to 11 years
School DetailsEaling Fields High School
School Type : Free Schools
Level : Secondary
Gender : Mixed
Age Range : 11 to 18 years
School DetailsGrange Primary School
School Type : Local authority maintained schools
Level : Primary
Gender : Mixed
Age Range : 3 to 11 years
School DetailsThe Eden SDA School
School Type : Independent schools
Gender : Mixed
Age Range : 2 to 18 years
School DetailsFielding Primary School
School Type : Local authority maintained schools
Level : Primary
Gender : Mixed
Age Range : 3 to 11 years
School DetailsGunnersbury Catholic School
School Type : Local authority maintained schools
Level : Secondary
Gender : Boys
Age Range : 11 to 18 years
School DetailsOur Lady and St John's Catholic Primary School
School Type : Local authority maintained schools
Level : Primary
Gender : Mixed
Age Range : 3 to 11 years
School DetailsLionel Primary School
School Type : Local authority maintained schools
Level : Primary
Gender : Mixed
Age Range : 3 to 11 years
School DetailsClifton Lodge School
School Type : Independent schools
Gender : Mixed
Age Range : 3 to 11 years
School DetailsSeva Special School
School Type : Special schools
Gender : Mixed
Age Range : 7 to 25 years
School DetailsEaling Independent College
School Type : Independent schools
Gender : Mixed
Age Range : 13 to 19 years
School DetailsElthorne Park High School
School Type : Local authority maintained schools
Level : Secondary
Gender : Mixed
Age Range : 11 to 19 years
School DetailsOaklands Primary School
School Type : Local authority maintained schools
Level : Primary
Gender : Mixed
Age Range : 3 to 11 years
School DetailsInsights Independent School
School Type : Special schools
Gender : Mixed
Age Range : 5 to 21 years
School DetailsBrentford School for Girls
School Type : Academies
Level : Secondary
Gender : Girls
Age Range : 11 to 18 years
School DetailsSt John's Primary School
School Type : Local authority maintained schools
Level : Primary
Gender : Mixed
Age Range : 3 to 11 years
School DetailsChrist the Saviour Church of England Primary School
School Type : Local authority maintained schools
Level : Primary
Gender : Mixed
Age Range : 3 to 11 years
School DetailsGreen Dragon Primary School
School Type : Local authority maintained schools
Level : Primary
Gender : Mixed
Age Range : 3 to 11 years
School DetailsBlooming Tree Primary School
School Type : Special schools
Gender : Mixed
Age Range : 4 to 11 years
School DetailsSt Paul's CofE Primary School
School Type : Local authority maintained schools
Level : Primary
Gender : Mixed
Age Range : 3 to 11 years
School DetailsLa Chouette School
School Type : Independent schools
Gender : Mixed
Age Range : 2 to 6 years
School DetailsDurston House School
School Type : Independent schools
Gender : Boys
Age Range : 4 to 13 years
School DetailsHarvington Prep School
School Type : Independent schools
Gender : Girls
Age Range : 3 to 12 years
School DetailsBolder Academy
School Type : Free Schools
Level : Secondary
Gender : Mixed
Age Range : 11 to 18 years
School DetailsInternational School of London
School Type : Independent schools
Gender : Mixed
Age Range : 3 to 18 years
School DetailsDrayton Green Primary School
School Type : Local authority maintained schools
Level : Primary
Gender : Mixed
Age Range : 3 to 11 years
School DetailsAvenue House School
School Type : Independent schools
Gender : Mixed
Age Range : 4 to 11 years
School DetailsKew Green Preparatory School
School Type : Independent schools
Gender : Mixed
Age Range : 4 to 11 years
School DetailsEagle Park Independent School
School Type : Special schools
Gender : Mixed
Age Range : 7 to 19 years
School DetailsArk Acton Academy
School Type : Academies
Level : Secondary
Gender : Mixed
Age Range : 11 to 18 years
School DetailsSt Joseph's Catholic Primary School
School Type : Local authority maintained schools
Level : Primary
Gender : Mixed
Age Range : 3 to 11 years
School DetailsSt Mark's Primary School
School Type : Local authority maintained schools
Level : Primary
Gender : Mixed
Age Range : 3 to 11 years
School DetailsTwyford Church of England High School
School Type : Academies
Level : Secondary
Gender : Mixed
Age Range : 11 to 18 years
School DetailsSt Benedict's School
School Type : Independent schools
Gender : Mixed
Age Range : 3 to 18 years
School DetailsAda Lovelace Church of England High School
School Type : Free Schools
Level : Secondary
Gender : Mixed
Age Range : 11 to 18 years
School DetailsThe Ellen Wilkinson School for Girls
School Type : Local authority maintained schools
Level : Secondary
Gender : Girls
Age Range : 11 to 18 years
School DetailsNotting Hill & Ealing High School
School Type : Independent schools
Gender : Girls
Age Range : 4 to 18 years
School DetailsSpringhallow School
School Type : Special schools
Gender : Mixed
Age Range : 4 to 19 years
School DetailsStrand-on-the-Green Junior School
School Type : Local authority maintained schools
Level : Primary
Gender : Mixed
Age Range : 7 to 11 years
School DetailsNishkam School West London
School Type : Free Schools
Level : All-through
Gender : Mixed
Age Range : 4 to 19 years
School DetailsStrand-on-the-Green Infant and Nursery School
School Type : Local authority maintained schools
Level : Primary
Gender : Mixed
Age Range : 3 to 7 years
School DetailsArk Soane Academy
School Type : Free Schools
Level : Secondary
Gender : Mixed
Age Range : 11 to 19 years
School DetailsDrayton Manor High School
School Type : Academies
Level : Secondary
Gender : Mixed
Age Range : 11 to 19 years
School DetailsBlooming Tree Pre Prep School
School Type : Special schools
Gender : Mixed
Age Range : 3 to 8 years
School DetailsBerrymede Junior School
School Type : Local authority maintained schools
Level : Primary
Gender : Mixed
Age Range : 7 to 11 years
School DetailsEaling Alternative Provision
School Type : Local authority maintained schools
Gender : Mixed
Age Range : 12 to 16 years
School DetailsThe Green School for Girls
School Type : Academies
Level : Secondary
Gender : Girls
Age Range : 11 to 18 years
School DetailsThe Japanese School
School Type : Independent schools
Gender : Mixed
Age Range : 6 to 15 years
School DetailsLeap Service - the National Autistics Society
School Type : Other types
Gender : Mixed
Age Range : 16 to 99 years
School DetailsBerrymede Infant School
School Type : Local authority maintained schools
Level : Primary
Gender : Mixed
Age Range : 3 to 7 years
School DetailsSouth Acton Childrens Centre
School Type : Local authority maintained schools
Level : Nursery
Gender : Mixed
Age Range : 3 to 5 years
School DetailsThe Green School for Boys
School Type : Free Schools
Level : Secondary
Gender : Boys
Age Range : 11 to 18 years
School DetailsMarlborough Primary School
School Type : Local authority maintained schools
Level : Primary
Gender : Mixed
Age Range : 3 to 11 years
School DetailsHobbayne Primary School
School Type : Local authority maintained schools
Level : Primary
Gender : Mixed
Age Range : 3 to 11 years
School DetailsMontpelier Primary School
School Type : Local authority maintained schools
Level : Primary
Gender : Mixed
Age Range : 4 to 11 years
School DetailsThe Queen's Church of England Primary School
School Type : Local authority maintained schools
Level : Primary
Gender : Mixed
Age Range : 4 to 11 years
School DetailsSt Gregory's Catholic Primary School
School Type : Local authority maintained schools
Level : Primary
Gender : Mixed
Age Range : 3 to 11 years
School DetailsBroomfield House School
School Type : Independent schools
Gender : Mixed
Age Range : 3 to 11 years
School DetailsSt Vincent's Catholic Primary School
School Type : Local authority maintained schools
Level : Primary
Gender : Mixed
Age Range : 3 to 11 years
School DetailsWest Acton Primary School
School Type : Local authority maintained schools
Level : Primary
Gender : Mixed
Age Range : 3 to 11 years
School DetailsSt Augustine's Priory
School Type : Independent schools
Gender : Girls
Age Range : 2 to 18 years
School DetailsGreek Primary School of London
School Type : Independent schools
Gender : Mixed
Age Range : 4 to 11 years
School DetailsThe Smallberry Green Primary School
School Type : Local authority maintained schools
Level : Primary
Gender : Mixed
Age Range : 3 to 11 years
School DetailsThe Falcons Pre Preparatory School for Boys
School Type : Independent schools
Gender : Mixed
Age Range : 2 to 7 years
School DetailsYsgol Gymraeg Llundain, London Welsh School
School Type : Independent schools
Gender : Mixed
Age Range : 3 to 11 years
School DetailsUnicorn School
School Type : Independent schools
Gender : Mixed
Age Range : 3 to 11 years
School DetailsNorth Ealing Primary School
School Type : Local authority maintained schools
Level : Primary
Gender : Mixed
Age Range : 3 to 11 years
School DetailsWoodlands Academy
School Type : Academies
Level : Primary
Gender : Mixed
Age Range : 3 to 11 years
School DetailsThe Woodbridge Park Education Service
School Type : Local authority maintained schools
Gender : Mixed
Age Range : 4 to 19 years
School DetailsNearby school not found
Property Search
Floor Paln

Privacy Policy
Kens Estate Limited (the ‘Company’) Privacy Notice
At Kens Estate Limited, we are committed to keeping your privacy protected. This notice explains how information about you is used.
The Company will be the data controller and can be contacted as follows:
- By post:
- Data Protection Manager, Kens Estate Limited, 218 Great Portland Street, London, W1W 5QP
- By e-mail:
- enquiries@kensestate.com
- By phone:
- +44 (0)20-4506-0270
The information we gather
The Company gathers certain information about you. Information about you is also used by our affiliated entities and group companies, including Frontive Holding Limited (our ‘group companies’). When we do so we are regulated under the General Data Protection Regulation which applies across the European Union (including in the United Kingdom), and the Data Protection Act 2018, and we are responsible for that personal information for the purposes of those laws.
In this notice, references to ‘we’ or ‘us’ means the Company and our group companies.
Information that we gather about you may include without limitation your name and business contact details. The provision of information by you is entirely voluntary.
We may also obtain information about you from third parties, such as our group companies, service providers and agents.
We have appropriate security measures in place to prevent personal information from being accidentally lost or used or accessed in an unauthorised way. We limit access to your personal information to those who have a genuine business needs to know it. Those processing your information will do so only in an authorised manner and are subject to a duty of confidentiality. We also have procedures in place to deal with any suspected data security breach. We will notify you and any applicable regulator of a suspected data security breach where we are legally required to do so.
The legal basis for processing
The processing will usually take place based on our legitimate interests. Our legitimate interests are that we are carrying or may carry on business with your employer. There is a limited privacy impact on you, and we think that you will expect that we will process your data in this way.
Information about third parties
Information we process as described in this notice may also include information about third parties whose details you supply to us.
Systems used to process data
We gather information directly from you and also via our websites and other technical systems. These may include, for example, our:
- computer networks and connections
- communications systems
- trading platforms
- email and instant messaging systems
- intranet and Internet facilities
- telephones, voicemail, mobile phone records
- other hardware and software owned, used or provided by or on behalf of us and our group companies.
Cookies
When you use our website we may gather information about you through Internet access logs, cookies and other technical means. ‘Cookies’ are text files placed on your computer to collect Internet log information and user behaviour information. These are used to track website usage and monitor website activity and for other data processing reasons set out below.
Some of the cookies we use are essential for parts of the site to operate and have already been set. You may delete and block all cookies from this site, but parts of the site will not work. To find out more about the cookies we use and how to delete them, please contact our Data Protection Manager.
Reasons for processing
We process information about you for the following reasons:
- to provide our services
- compliance with legal, regulatory and corporate governance obligations and good practice
- gathering information as part of investigations by regulatory bodies or in connection with legal proceedings or requests
- ensuring business policies are adhered to
- operational reasons, such as recording transactions, training and quality control
- ensuring the confidentiality of commercially sensitive information
- security vetting, investigating claims, complaints and allegations of criminal offences
- statistical analysis
- preventing unauthorised access and modifications to systems
- marketing our business and those of our group
- analysing purchasing preferences and improving services
- providing customer services
Disclosures and exchange of information and transfers outside the EEA
We may disclose and exchange information with our group companies, credit reference agencies, service providers, representatives, and agents, as well as with law enforcement agencies and regulatory bodies for the above reasons.
Information may be held at our offices and those of our group companies, and third party credit reference agencies, service providers, representatives and agents as described above. Information may be transferred internationally to Japan and other countries around the world, including those without data protection laws equivalent to those in the UK, for the reasons described above. We have security measures in place to seek to ensure that there is appropriate security for information we hold including those measures detailed in our information security and data protection policies, which are available on request. Wherever possible, international data transfers outside the European Economic Area are protected by Standard Contractual Clauses, as per GDPR Article 46(2). If you would like further information, please contact our Data Protection Manager (see above). We will not otherwise transfer your personal data outside of the EEA or to any organisation (or subordinate bodies) governed by public international law or which is set up under any agreement between two or more countries.
Retention periods
Your data will be held in accordance with the Company’s retention policy, which is available on request. In general, your data will be stored for the duration of your relationship with us, plus 6 years.
Further enquiries
Please contact the Data Protection Manager if you would like to correct or request (in accordance with applicable law) information that we hold relating to you or if you have any questions in relation to the above.
Your rights
You have a number of important rights, which can be exercised free of charge. You have the right to request:
- access to your personal information and to certain other supplementary information that this Privacy Notice is already designed to address
- require us to correct any mistakes in your information which we hold
- require the erasure of personal information concerning you in certain situations
- receive the personal information concerning you which you have provided to us, in a structured, commonly used and machine-readable format and have the right to transmit those data to a third party in certain situations
- object at any time to processing of personal information concerning you for direct marketing
- object to decisions being taken by automated means which produce legal effects concerning you or similarly significantly affect you
- object in certain other situations to our continued processing of your personal information
- otherwise restrict our processing of your personal information in certain circumstances.
Where you have given consent to any data processing, you have the right to withdraw that consent at any time. We will not do anything with your data not outlined in this notice.
For further information on each of those rights, including the circumstances in which they apply, see the Guidance from the UK Information Commissioner’s Office (ICO) on individuals’ rights under the General Data Protection Regulation.
If you would like to exercise any of these rights, please contact our Data Protection Manager in writing (see above), providing enough information to identify you and let us know which information to which your request relates.
If you are not satisfied with any complaint you have with us, you also have the right to make a complaint to the Information Commissioners Office, which is the supervising authority in the UK in relation to data processing. You can contact the Information Commissioner at ico.org.uk/concerns/ or by telephone: 0303 123 1113 for further information about your rights and how to make a formal complaint.
We may change this privacy notice from time to time, when we do, we will inform you via e-mail.
Direct marketing
Information relating to you will be used to notify you by post, email or other electronic means of our services and those of our group companies and third party business partners, in particular Kens Global Support Limited., Kens Cube Ltd., Rising Sun UK Limited, and Adanami Limited in which we believe you may be interested. You can withdraw your consent to use of personal data for marketing at any time by contacting us at enquiries@kensestate.com.
This privacy notice was last amended in January 2022. It supersedes any earlier version.










